Déroulement d'une mission

Lors du premier contact avec mes clients (des particuliers pour la plupart, mais pas que) LA question qui se pose systématiquement et rapidement est la suivante : Comment ça se passe ?

Elle est bien entendu légitime puisque finalement le rôle de l’architecte est souvent un peu flou et quelque peu déformé par l’image que certains médias peuvent renvoyer de notre métier.

Non, un projet ne se fait pas à partir d’un croquis rapide, suivi illico d’un chantier express aboutissant à une mise en scène avec bougies, table dressée, fleurs fraîches et tutti quanti. Le tout bien sûr sans mentionner le caractère financier qu’il génère.

Non… Dans la vraie vie, un projet se murit, il est le fruit d’échanges nombreux avec le client, d’aller-retours, de prise en compte des différentes contraintes, de démarches administratives, d’aléas de chantier, etc

Mais revenons-en à nos moutons… Comment ça se passe concrètement ?

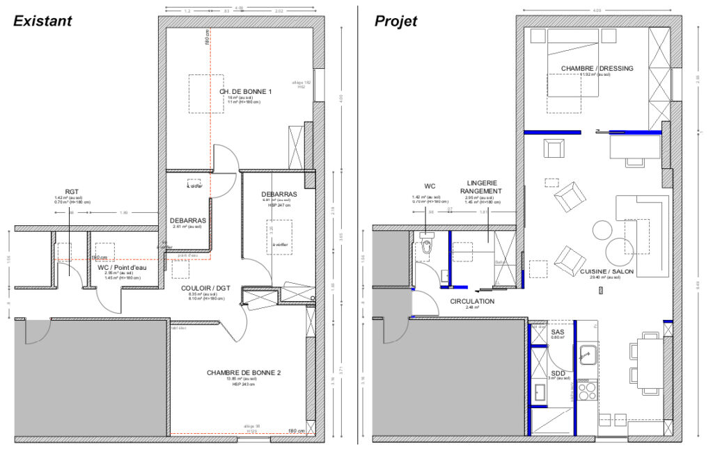
aménagement appartement Rouen

Étape 1 : le premier contact

Un appel ou un mail : présentation succincte de votre projet. Où se situe votre maison / appartement / terrain ? Quel est votre projet ? Qu’attendez vous de moi ?

J’expose ma façon de travailler et un premier rendez-vous est pris, toujours sur place, de manière à rentrer directement dans le cœur du sujet : le Projet.

Projet d’architecture, projet de vie.

Étape 2 : le premier rendez-vous, donc

Le premier rendez-vous est, pour moi, celui de l’écoute.

  • Écoute de vos besoins concrets (« Nous attendons un second enfant, nous avons besoin d’une chambre supplémentaire et d’agrandir le salon devenu trop exigu »)
  • Écoute de vos attentes en matière de goût, de style, de mode de vie, de budget
  • Écoute de vos envies en terme d’accompagnement : juste besoin d’un plan de réorganisation de l’espace ou besoin d’être accompagné du début à la fin du chantier… de A à Z ou un entre-deux. Tout ou presque est possible.

Armée du règlement d’urbanisme en vigueur, je vérifie que toutes ces envies exposées rentrent dans le cadre réglementaire. On discute, on échafaude un plan et au terme de cette première rencontre je vous envoie une proposition d’honoraires adaptée à vos besoins.

Architecte d'intérieur Rouen

Étape 3 : du relevé (dans le cas d’une extension ou d’une rénovation) aux premières esquisses

Une fois la proposition acceptée, le contrat signé, le moment est venu de faire le relevé métré qui sera la base indispensable des différentes projections.

Puis, sans jamais perdre de vue les contraintes (d’urbanisme, financières, techniques, etc.) et vos attentes, j’imagine, sans me fermer de porte dans un premier temps, toutes les configurations possible. Je les explore, dessine, modélise, en élimine certaines pour retenir les plus pertinentes.

Propositions que je vous présente lors d’une nouvelle rencontre.

À partir de ces premières esquisses l’objectif est d’échanger et de retravailler votre projet, de le réajuster jusqu’à obtenir un résultat conforme à vos attentes, et même au-delà, idéalement 🙂

Étape 4 : le projet détaillé, les démarches administratives et le chantier

Une fois le projet abouti dans les grandes lignes, on le peaufine, dessine de façon détaillée les éléments clés afin de préparer sereinement le futur chantier.

En parallèle peut être réalisé à ce stade le dossier administratif pour la demande d’autorisation (un permis de construire pour une extension de plus de 40 m² par exemple / une déclaration préalable pour une extension plus petite ou bien dans le cadre d’une rénovation modifiant l’aspect extérieur du bâtiment, etc)

Après obtention de l’autorisation (ou en amont selon les cas), la phase de consultation des entreprises peut commencer. Les artisans sont alors choisis, le planning élaboré, le chantier peut démarrer.

Le chantier étant rarement un long fleuve tranquille, je suis là pour vous accompagner jusqu’à réception des travaux, coordonner les entreprises, vous aider à prendre des décisions, faire des choix, trouver des solutions afin que la réalité colle au plus près avec le projet rêvé.

Si toutes ces étapes sont menées avec l’architecte on parle de mission complète. Mais vous êtes tout à fait libre de choisir la ou les premières phases en prenant vous-même en charge le chantier.

Architecte d'intérieur Rouen

Pourquoi faire appel à un architecte ?

La réponse découle de l’énumération de ces différentes étapes.

En effet le processus peut être long, complexe dans certains cas de figure. L’architecte arrive sur un terrain neutre, avec son regard aiguisé par l’expérience acquise, il vous proposera certainement des solutions que vous n’auriez pas envisagées.

Il vous accompagne du début à la fin de votre projet, écoute vos envies et vous propose des réponses adaptées, originales.

L’architecte vous aide à définir votre projet, à prendre du recul, à organiser les volumes, à optimiser les espaces, à donner de la valeur à votre bien (la mention « maison d’architecte » attire toujours le regard sur des annonces de ventes immobilières !) et…à vous faire gagner du temps.

« L’architecture actuelle s’occupe de la maison, de la maison ordinaire et courante pour hommes normaux et courants. Elle laisse tomber les palais. Voilà un signe des temps ».

Le Corbusier, Vers une architecture.